Chantiers archéologiques
Chantiers archéologiques

Nord
Marquette-lez-Lille,
Abbaye Jeanne de Flandre
Abbaye cistercienne
Époque :
- Moyen Âge
- Bas Moyen Âge
- Temps modernes
-
City skyline
ButtonRestitution du cœur de l'abbaye d'après les sondages préliminaires (2002-2003) et la fouille programmée triennale (2005-2007). © DAO Archéopole
-
Birthday Sparks
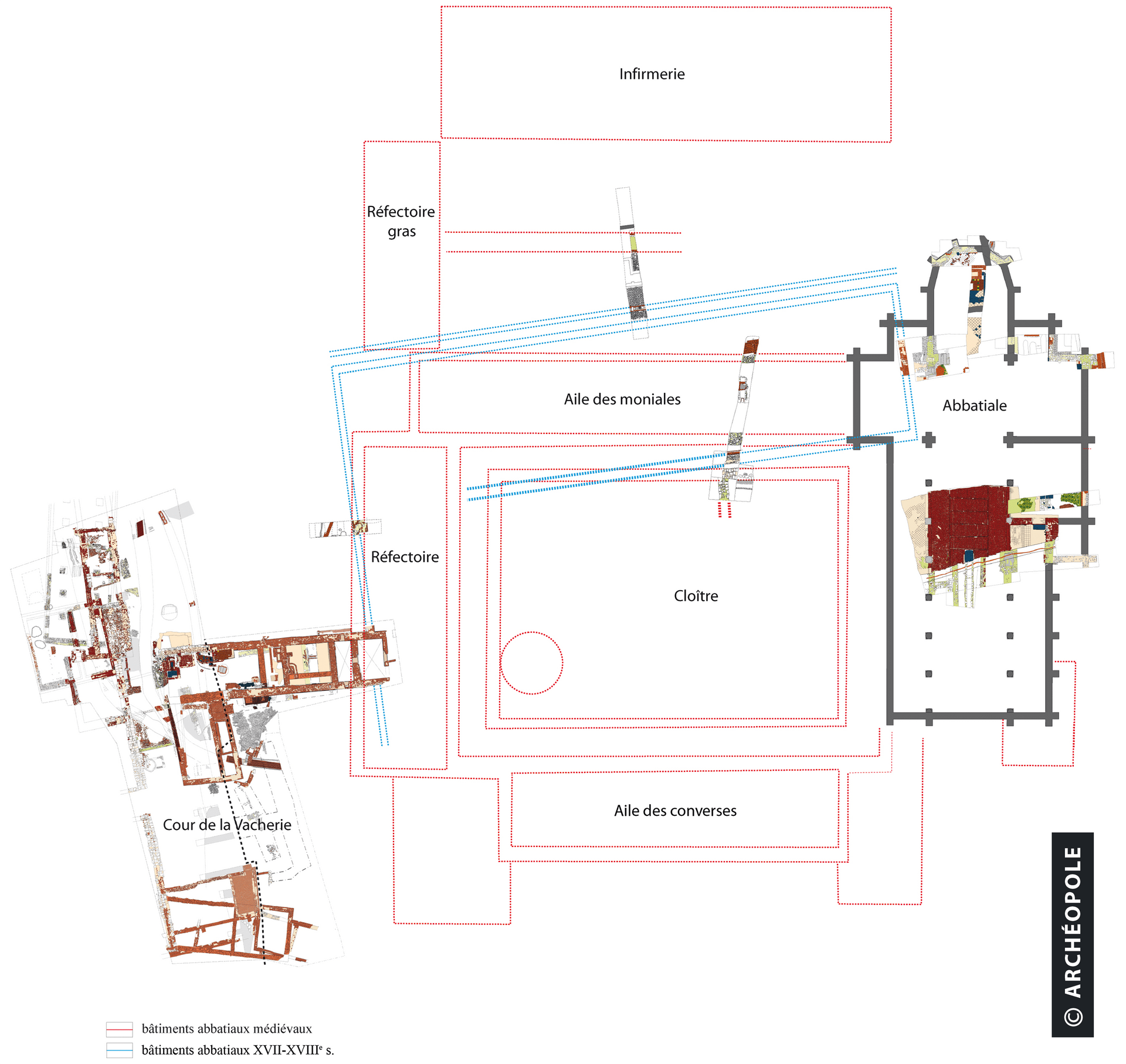
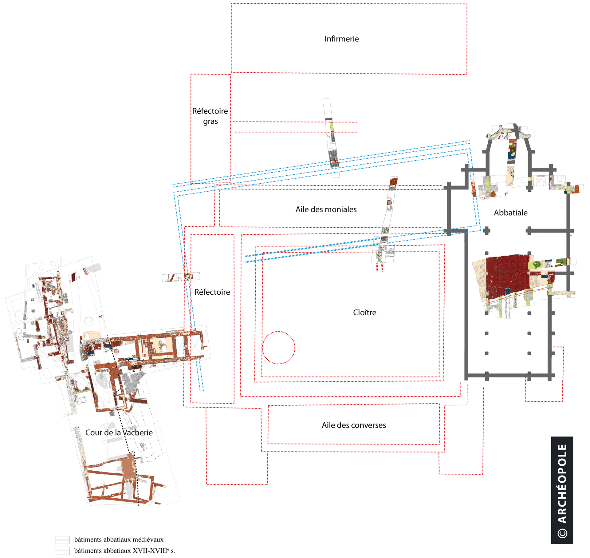
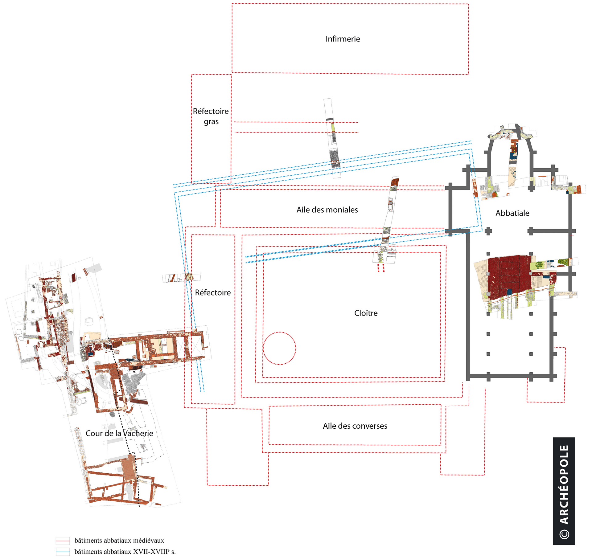
ButtonAbbaye de Marquette : plan figuré de l'enclos abbatial. © DAO Archéopole
-
Fashion Magazine
ButtonVue aérienne des fouilles dans le secteur de la cour de la vacherie, de la grange et des cuisines. © Photographie sous cerf-volant B.-N. Chagny
-
Button
Cheminée médiévale dont le sol est composé de tuiles posées de chant. © Archéopole
-
Button
Hypothèse de restitution du carré régulier dans son état primitif. © L. Gubellini, Archéopole
-
Button
Ensemble de vaisselle de table (pichet, cruche) et pots à cuire individuels (coquemars) issus du réfectoire datant de la seconde moitié du XIIIe siècle. © L. Gubellini, Archéopole
-
Button
Vue sur la nef de l'église abbatiale et l'alignement de caveaux aménagé au centre du chœur des moniales. © Photographie aérienne sous cerf-volant B.-N. Chagny
-
Button
Carreaux de pavement mosaïque du sol médiéval originel de l’église abbatiale, XIIIe-XIVe s. © Photographie Archéopole
-
Button
Restitution du tombeau de la comtesse Jeanne de Flandre, daté du XIIIe s., d'après les découvertes lapidaires. © G. Delepierre, Archéopole et B. Chauvin

Nord
Marquette-lez-Lille,
Abbaye Jeanne de Flandre
Abbaye cistercienne
Époque :
- Moyen Âge
- Bas Moyen Âge
- Temps modernes
-
City skyline
ButtonRestitution du cœur de l'abbaye d'après les sondages préliminaires (2002-2003) et la fouille programmée triennale (2005-2007). © DAO Archéopole
-
Birthday Sparks
ButtonAbbaye de Marquette : plan figuré de l'enclos abbatial. © DAO Archéopole
-
Fashion Magazine
ButtonVue aérienne des fouilles dans le secteur de la cour de la vacherie, de la grange et des cuisines. © Photographie sous cerf-volant B.-N. Chagny
-
Button
Cheminée médiévale dont le sol est composé de tuiles posées de chant. © Archéopole
-
Button
Hypothèse de restitution du carré régulier dans son état primitif. © L. Gubellini, Archéopole
-
Button
Ensemble de vaisselle de table (pichet, cruche) et pots à cuire individuels (coquemars) issus du réfectoire datant de la seconde moitié du XIIIe siècle. © L. Gubellini, Archéopole
-
Button
Vue sur la nef de l'église abbatiale et l'alignement de caveaux aménagé au centre du chœur des moniales. © Photographie aérienne sous cerf-volant B.-N. Chagny
-
Button
Carreaux de pavement mosaïque du sol médiéval originel de l’église abbatiale, XIIIe-XIVe s. © Photographie Archéopole
-
Button
Restitution du tombeau de la comtesse Jeanne de Flandre, daté du XIIIe s., d'après les découvertes lapidaires. © G. Delepierre, Archéopole et B. Chauvin

Nord
Marquette-lez-Lille,
Abbaye Jeanne de Flandre
Abbaye cistercienne
Époque :
- Moyen Âge
- Bas Moyen Âge
- Temps modernes
-
City skyline
ButtonRestitution du cœur de l'abbaye d'après les sondages préliminaires (2002-2003) et la fouille programmée triennale (2005-2007). © DAO Archéopole
-
Birthday Sparks
ButtonAbbaye de Marquette : plan figuré de l'enclos abbatial. © DAO Archéopole
-
Fashion Magazine
ButtonVue aérienne des fouilles dans le secteur de la cour de la vacherie, de la grange et des cuisines. © Photographie sous cerf-volant B.-N. Chagny
-
Button
Cheminée médiévale dont le sol est composé de tuiles posées de chant. © Archéopole
-
Button
Hypothèse de restitution du carré régulier dans son état primitif. © L. Gubellini, Archéopole
-
Button
Ensemble de vaisselle de table (pichet, cruche) et pots à cuire individuels (coquemars) issus du réfectoire datant de la seconde moitié du XIIIe siècle. © L. Gubellini, Archéopole
-
Button
Vue sur la nef de l'église abbatiale et l'alignement de caveaux aménagé au centre du chœur des moniales. © Photographie aérienne sous cerf-volant B.-N. Chagny
-
Button
Carreaux de pavement mosaïque du sol médiéval originel de l’église abbatiale, XIIIe-XIVe s. © Photographie Archéopole
-
Button
Restitution du tombeau de la comtesse Jeanne de Flandre, daté du XIIIe s., d'après les découvertes lapidaires. © G. Delepierre, Archéopole et B. Chauvin
L’abbaye de Marquette a été fondée au XIIIe siècle par la comtesse Jeanne de Flandre. Elle fut partiellement détruite lors d’un incendie en 1793 et arasée aux profit d’entrepreneurs qui en pillèrent les matériaux de constructions. Elle a fait l’objet d’une étude documentaire publiée par B. Chauvin en 2002, suivie de deux séries de sondages archéologiques (2003 et 2004) dans la perspective d’une fouille programmée. Trois campagnes de fouilles programmées ont depuis été réalisées au cours des étés 2005, 2006 et 2007.
Ces trois années ont été pour l’essentiel consacrées à la fouille des parties économiques de l’abbaye. Explorées sur environ 2 000 m², elles sont situées au nord du carré des moniales. L’année 2007, outre la poursuite de l’exploration des parties économiques, une petite fenêtre de 210 mm² a été ouverte dans l’abbatiale à l’emplacement du chœur des moniales, lieu de sépulture de la comtesse Jeanne de Flandre. Ces trois années de fouille ont permis de modifier notre vision de l’abbaye, notamment de connaître son organisation et son évolution.
Dans les parties économiques cinq phases ont pu être distinguées. Les deux premières remontent aux premiers temps de l’abbaye, elles couvrent une période allant du XIIIe au XVe siècle. Durant cette période, les bâtiments agricoles (grange dimière, vacherie …) bordent une cour mais selon des orientations divergentes. Le matériau de construction principal usité est le calcaire. Durant le XVIe siècle, l’ensemble des bâtiments médiévaux découverts sont démantelés. Ils cèdent la place à de nouveaux bâtiments aux fonctions similaires mais organisés de manière plus rationnelle. Ces bâtiments, édifiées du XVIe et XVIIIe siècle sont désormais organisés en ailes. Le matériau de construction employé pour l’élévation est la brique.
Un bâtiment faisant la jonction entre ces parties économiques et le carré des moniales a également été exhumé. Il est disposé perpendiculairement au réfectoire situé dans l’aile nord du carré des moniales. Sa destination était inconnue au démarrage des fouilles. Les structures découvertes en son sein (cheminée médiévale, four, cendrier...) permettent d’affirmer qu’il s’agit des cuisines qui ont perduré à cet emplacement de l’origine de l’abbaye à sa destruction. Cette localisation des cuisines ne correspond pas au plan type des abbayes cisterciennes mais répond à une logique fonctionnelle. Elles se situent en effet, entre la ferme où sont produits et stockés les aliments et le réfectoire où ils sont consommés.
La petite fenêtre ouverte sur l’abbatiale, bien que modeste, a apporté de nombreux éléments de réponses sur ses dimensions, sa chronologie d’édification et sa destination.
On possède désormais quelques bribes d’informations sur son élévation comme la physionomie des supports ou l’utilisation de la brique dès le XIIIe siècle dans le Nord, relançant ainsi le débat sur l’importance du rôle des cisterciens concernant la diffusion de ce matériau dans nos régions.
De plus, une meilleure connaissance des substructions de l’église et de sa chronologie a permis de déterminer que, outre sa fonction de lieu de culte des moniales, cette abbatiale a certainement eu pour objet de servir de nécropole familiale aux comtes de Flandre. C’est ce qui explique au centre du chœur des moniales l’aménagement d’un alignement de caveaux observé sur au moins 10 m et dans lesquels seule une sépulture a été découverte à ce jour (probablement celle de Ferrand du Portugal). Le caveau situé sous le gisant de la comtesse Jeanne de Flandre a été fouillé, le corps de la défunte ne s’y trouvait pas. Les nouveaux éléments apportés par la fouille permettent non seulement d’expliquer cette absence (plusieurs éléments prouvent que le gisant a été déplacé) mais de prévoir au mètre près son emplacement probable.
Dernièrement, la commune de Marquette-lez-Lille a sollicité notre société pour effectuer le tri des nombreux déblais positionnés sur le site, issus des fouilles programmées triennales et des autres travaux adjacents, notamment ceux consécutifs au démantèlement de l’usine ayant pris possession des lieux durant l’ère industrielle. Ce sont donc plusieurs milliers de mètres cubes de sédiments qui ont été triés majoritairement mécaniquement. Il ont permis de compléter de manière substantielle le corpus des éléments lapidaires relatifs à l’abbaye. Ainsi, plusieurs centaines de fragments lapidaires dont un certain nombre sont architecturés ont été recueillis. Les fragments découverts sont de tailles diverses, extrêmement mutilés et incomplets. Cependant, une centaine de fragments possèdent une valeur stylistique ou architecturale notable.
Laurent Gubellini, Guillaume Delepierre et Raphaël Pouriel
Responsables d’opération
ARTICLES :
DELEPIERRE G., CHAUVIN B., Autour de la pierre tombale de Gilles de Dadizeele (1480-1503), Annales du Comité Flamand De France, tome 62, 2004. pp. 11-25.
DELEPIERRE G., CHAUVIN B., Le mausolée de la comtesse Jeanne à l’abbaye de Marquette-lez-Lille, Revue du Nord, Archéologie de la Picardie et du Nord de la France, tome 88, n°368, 2006, pp. 109-125.
GUBELLINI L., L’abbaye de Marquette-lez-Lille (Nord). Les sondages 2003-2004, Revue du Nord, Archéologie de la Picardie et du Nord de la France, Université de Lille III, n° 368, 2006, pp. 79-108.
Responsables d'opération :
Laurent Gubellini, Guillaume Delepierre
et Raphaël Pouriel
Superficie :
2 210 m² (superficie totale explorée)
Aménageur :
Commune de Marquette-lez-Lille
Rapport final d'opération :
Rapport disponible auprès de la DRAC Hauts-de-France, Service Régional de l'Archéologie
L’abbaye de Marquette a été fondée au XIIIe siècle par la comtesse Jeanne de Flandre. Elle fut partiellement détruite lors d’un incendie en 1793 et arasée aux profit d’entrepreneurs qui en pillèrent les matériaux de constructions. Elle a fait l’objet d’une étude documentaire publiée par B. Chauvin en 2002, suivie de deux séries de sondages archéologiques (2003 et 2004) dans la perspective d’une fouille programmée. Trois campagnes de fouilles programmées ont depuis été réalisées au cours des étés 2005, 2006 et 2007.
Ces trois années ont été pour l’essentiel consacrées à la fouille des parties économiques de l’abbaye. Explorées sur environ 2 000 m2, elles sont situées au nord du carré des moniales. L’année 2007, outre la poursuite de l’exploration des parties économiques, une petite fenêtre de 210 m2 a été ouverte dans l’abbatiale à l’emplacement du chœur des moniales, lieu de sépulture de la comtesse Jeanne de Flandre. Ces trois années de fouille ont permis de modifier notre vision de l’abbaye, notamment de connaître son organisation et son évolution.
Dans les parties économiques cinq phases ont pu être distinguées. Les deux premières remontent aux premiers temps de l’abbaye, elles couvrent une période allant du XIIIe au XIVe siècle. Durant cette période, les bâtiments agricoles (grange dimière, vacherie …) bordent une cour mais selon des orientations divergentes. Le matériau de construction principal usité est le calcaire. Durant le XVIe siècle, l’ensemble des bâtiments médiévaux découverts sont démantelés. Ils cèdent la place à de nouveaux bâtiments aux fonctions similaires mais organisés de manière plus rationnelle. Ces bâtiments, édifiées du XVIe et XVIIIe siècle sont désormais organisés en ailes. Le matériau de construction employé pour l’élévation est la brique.
Un bâtiment faisant la jonction entre ces parties économiques et le carré des moniales a également été exhumé. Il est disposé perpendiculairement au réfectoire situé dans l’aile nord du carré des moniales. Sa destination était inconnue au démarrage des fouilles. Les structures découvertes en son sein (cheminée médiévale, four, cendrier...) permettent d’affirmer qu’il s’agit des cuisines qui ont perduré à cet emplacement de l’origine de l’abbaye à sa destruction. Cette localisation des cuisines ne correspond pas au plan type des abbayes cisterciennes mais répond à une logique fonctionnelle. Elles se situent en effet, entre la ferme où sont produits et stockés les aliments et le réfectoire où ils sont consommés.
La petite fenêtre ouverte sur l’abbatiale, bien que modeste, a apporté de nombreux éléments de réponses sur ses dimensions, sa chronologie d’édification et sa destination.
On possède désormais quelques bribes d’informations sur son élévation comme la physionomie des supports ou l’utilisation de la brique dès le XIIIe siècle dans le Nord, relançant ainsi le débat sur l’importance du rôle des cisterciens concernant la diffusion de ce matériau dans nos régions.
De plus, une meilleure connaissance des substructions de l’église et de sa chronologie a permis de déterminer que, outre sa fonction de lieu de culte des moniales, cette abbatiale a certainement eu pour objet de servir de nécropole familiale aux comtes de Flandre. C’est ce qui explique au centre du chœur des moniales l’aménagement d’un alignement de caveaux observé sur au moins 10 m et dans lesquels seule une sépulture a été découverte à ce jour (probablement celle de Ferrand du Portugal). Le caveau situé sous le gisant de la comtesse Jeanne de Flandre a été fouillé, le corps de la défunte ne s’y trouvait pas. Les nouveaux éléments apportés par la fouille permettent non seulement d’expliquer cette absence (plusieurs éléments prouvent que le gisant a été déplacé) mais de prévoir au mètre près son emplacement probable.
Dernièrement, la commune de Marquette-lez-Lille a sollicité notre société pour effectuer le tri des nombreux déblais positionnés sur le site, issus des fouilles programmées triennales et des autres travaux adjacents, notamment ceux consécutifs au démantèlement de l’usine ayant pris possession des lieux durant l’ère industrielle. Ce sont donc plusieurs milliers de mètres cubes de sédiments qui ont été triés majoritairement mécaniquement. Il ont permis de compléter de manière substantielle le corpus des éléments lapidaires relatifs à l’abbaye. Ainsi, plusieurs centaines de fragments lapidaires dont un certain nombre sont architecturés ont été recueillis. Les fragments découverts sont de tailles diverses, extrêmement mutilés et incomplets. Cependant, une centaine de fragments possèdent une valeur stylistique ou architecturale notable.
Laurent Gubellini, Guillaume Delepierre et Raphaël Pouriel
Responsables d’opération
ARTICLES :
DELEPIERRE G., CHAUVIN B., Autour de la pierre tombale de Gilles de Dadizeele (1480-1503), Annales du Comité Flamand De France, tome 62, 2004. pp. 11-25.
DELEPIERRE G., CHAUVIN B., Le mausolée de la comtesse Jeanne à l’abbaye de Marquette-lez-Lille, Revue du Nord, Archéologie de la Picardie et du Nord de la France, tome 88, n°368, 2006, pp. 109-125.
GUBELLINI L., L’abbaye de Marquette-lez-Lille (Nord). Les sondages 2003-2004, Revue du Nord, Archéologie de la Picardie et du Nord de la France, Université de Lille III, n° 368, 2006, pp. 79-108.
Responsables d'opération :
Laurent Gubellini, Guillaume Delepierre et Raphaël Pouriel
Superficie :
2210 m² (superficie totale explorée)
Aménageur :
Commune de Marquette-lez-Lille
Rapport final d'opération :
Rapport disponible auprès de la DRAC Hauts-de-France, Service Régional de l'Archéologie










